Mẫu nhà ống 2,5 tầng hiện đại có phòng riêng cho giúp việc

Mẫu nhà ống 2,5 tầng hiện đại có phòng riêng cho giúp việc


Hỏi: Vợ chồng tôi có lô đất mặt tiền rộng 6x22m. Tôi dự định xây nhà lô 2.,5 tầng trên diện tích 6x15m, phần còn lại làm sân trước để xe, sân sau gia công cho bếp và lấy không gian thoáng cho các phòng phía sau trên tầng 2 và tum.

Gia đình tôi có 5 người, gồm hai vợ chồng, một cậu con trai và một cô con gái nên cần bố trí các phòng chức năng như sau:

- Tầng 1: Sân trước để xe, phòng khách, phòng ngủ giúp việc, cầu thang bộ, phòng vệ sinh, phòng bếp ăn, sân sau.

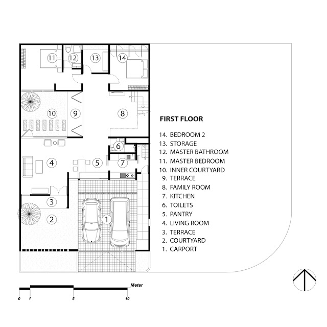
- Tầng 2: Gồm 3 phòng ngủ và 2 phòng vệ sinh.

- Tầng tum: Phòng thờ, khu giặt và phơi đồ, sân thượng.

Mong được kiến trúc sư tư vấn phương án thiết kế nhà ống 2,5 tầng hiện đại, đầy đủ công năng và hợp phong thủy.

Trân trọng cảm ơn!

Kiến trúc sư tư vấn thiết kế nhà ống 2,5 tầng phong cách hiện đại:

Dựa theo thông tin mà gia chủ cung cấp và yêu cầu thiết kế nhà, kiến trúc sư xin đưa ra phương án tư vấn kiến trúc như sau: 

Mặt bằng bố trí nội thất tầng 1 nhà ống

- Tầng 1: Từ cổng đi vào, kiến trúc sư bớt lại một khoảng đất 7m phía trước nhà làm sân vườn và chỗ để xe cho các thành viên gia đình. Khoảng không gian tiếp theo là phòng khách với diện rộng rãi, bài trí hiện đại và sang trọng.

Phòng bếp kết hợp phòng ăn được thiết kế liên thông với phòng khách giúp không gian trở lên thông thoáng hơn. Khu vực bếp kết hợp phòng ăn được bố trí ở cuối nhà, có cửa mở ra khoảng sân sau giúp đẩy hơi nóng, mùi thức ăn ra ngoài.

Sân sau là khu vực đa chức năng, nơi gia chủ có thể dùng để sơ chế thực phẩm tươi sống hoặc bố trí tiểu cảnh, trồng hoa, cây xanh tạo không gian thư giãn thoáng mát.

Phòng ngủ ở tầng 1 dành cho cô giúp việc với thiết kế nội thất cơ bản, tiện dụng. Ngoài ra, tầng 1 còn có một phòng vệ sinh chung phục vụ nhu cầu sinh hoạt hàng ngày.

Mặt bằng bố trí nội thất tầng 2 nhà ống

- Tầng 2: Gồm 2 phòng ngủ và 2 phòng vệ sinh. Phòng ngủ master được thiết kế ở phía trước nhà với diện  tích rộng rãi, có vệ sinh khép kín và phòng thay đồ. Căn phòng như rộng thoáng hơn nhờ khung cửa sổ kính cao rộng. Cùng với đó là cửa mở ra ban công đón gió, lấy sáng tự nhiên tối đa.

Phòng ngủ của cậu con trai và cô con gái được thiết kế với diện tích vừa đủ để thuận tiện cho việc sinh hoạt, học tập hàng ngày. Phòng vệ sinh chung phục vụ nhu cầu sinh hoạt ở tầng 2.

Mặt bằng bố trí nội thất tầng tum nhà ống

- Tầng 3: Gồm phòng thờ, khu giặt phơi và sân thượng. Phòng thờ được thiết kế ở vị trí cao nhất của ngôi nhà nhằm tỏ lòng thành kính với các bậc tiền bối. Hướng bàn thờ nhìn về cung Thiên Y tốt cho gia chủ. Kho là nơi chưa đồ ít dùng của gia chủ. Cuối nhà là khu giặt và phơi đồ cho các thành viên trong gia đình. 

Phối cảnh 3D mẫu nhà ống 2,5 tầng phong cách hiện đại

Không gian nội thất tham khảo:

Phòng khách nhà ống hiện đại được thiết kế theo lối tối giản, sử dụng bảng màu trung tính trang nhã, tạo cảm giác sang trọng.

Không gian bếp nấu kết hợp phòng ăn với bảng màu nâu trầm ấm cúng.

Mẫu phòng ngủ master hiện đại có vệ sinh khép kín tiện lợi. Vách kính trong suốt ở khu vệ sinh tạo độ thông thoáng cho căn phòng.

Phòng ngủ con trai với tông màu trắng - xanh dương trẻ trung, tươi mát. Với cửa sổ kính và cửa mở ra ban công, căn phòng đón nhận tối đa ánh sáng, gió trời. Đọc bài về 

Phòng ngủ con gái được bài trí gọn đẹp với hệ tủ kệ thông minh kết hợp ghế ngồi đọc sách, thư giãn bên khung cửa sổ kính thoáng sáng.

Phòng thờ bài trí theo lối đối xứng trang nghiêm, thoáng đãng.

Phòng vệ sinh trong nhà ống 2,5 tầng được trang bị đầy đủ tiện ích hiện đại, sử dụng bảng màu trắng chủ đạo sang trọng, sạch sẽ.

Đọc thêm bài về thiết kế biệt thự 3 tầng đẹp https://bietthu3tang.com/

Theo thanhnienviet

Ngôi nhà như "ốc đảo" giữa đại dịch, được kiến tạo bởi 3 nhà thiết kế

Ngôi nhà như "ốc đảo" giữa đại dịch, được kiến tạo bởi 3 nhà thiết kế


Được kiến tạo bởi "3 nhà thiết kế", ngôi nhà này tựa như ốc đảo xanh mát, bình yên giữa lòng thành phố. Với thiết kế thông minh, làm mờ ranh giới giữa bên trong và bên ngoài nhà, công trình mang đến cho gia chủ không gian sống ngập tràn nắng gió, gần gũi với thiên nhiên, nơi trú ẩn lý tưởng trong bối cảnh đại dịch Covid-19.

Ngôi nhà tọa lạc ở khu vực Kertomenanggal, Surabaya, trong một khu dân cư gần biên giới phía Nam của các thành phố Surabaya và Sidoarjo, Indonesia. Công trình được xây dựng trên diện tích đất 12x18,5m, mang đến cho gia chủ không gian sống thanh bình, yên tĩnh dù nằm ngay gần tuyến đường chính ra vùng ngoại ô

Chủ sở hữu là một nhà thiết kế đồ họa, vì vậy anh ấy có gu thẩm mỹ khá tốt về lĩnh vực thiết kế kiến trúc và điều này trợ giúp cho các kiến trúc sư trong quá trình thiết kế thi công. Ít nhất, khách hàng cũng hiểu về tỷ lệ, quy mô, nhiệp điệu thiết kế được áp dụng cho ngôi nhà.

Tại Surabaya, thời tiết khá nóng, do đó xu hướng thiết kế nhà ở tại đây thường theo kiểu "ốc đảo" để làm mát không khí bên trong. Công trình này cũng không ngoại lệ. Vì vậy, ở giữa ngôi nhà, kiến trúc sư bố trí một khoảng trống lớn kiêm chức năng sân trong và giếng trời thông gió, lấy sáng tự nhiên. Đây cũng chính là nơi kết nối các không gian chức năng xung quanh nó.

Ngôi nhà được tối ưu hóa các khoảng trống, lỗ thông gió để nắng gió tự nhiên có thể len lỏi vào mọi ngóc ngách bên trong nhà. Không khí nhờ đó cũng được đối lưu hiệu quả, mang đến bầu không khí trong lành, mát mẻ. Trung tâm của ngôi nhà được trồng một cây chùm ngây lớn, tạo bóng mát cho trẻ vui đùa, người lớn thư giãn... Đọc bài về https://nhaxinhpro1.wixsite.com/trang-chu

Mặt tiền ngôi nhà đơn giản mà ấn tượng với tông màu trắng sáng chủ đạo kết hợp chất liệu gạch nung ấm áp, tạo cảm giác gần gũi, thân thiện.

Dễ dàng nhận thấy, ưu điểm từ vị trí mặt tiền đường lớn mang đến cho ngôi nhà tầm nhìn rộng mở, thoáng đãng và nhiều ánh sáng tự nhiên.

Khoảng sân trước để xe với mái che mưa nắng. Cửa cổng bằng lưới thép vừa đảm bảo tính riêng tư thiết yếu, vừa thông thoáng.

Sự kết hợp hài hòa giữa các chất liệu gạch nung truyền thống, bê tông, đá tự nhiên và kim loại tạo nên diện mạo tối giản mà ấn tượng cho ngoại thất công trình.

Tất cả các phòng trong nhà đều có cửa mở hướng ra khoảng sân trong thoáng mát. Sân trong kết hợp cùng các khoảng trống của cầu thang giúp ánh sáng và không khí lưu thông, hoạt động tối ưu. Đối với những phòng nằm ở phía sau nhà, những khoảng trống nhỏ giữa bức tường phía sau cho phép nắng gió tràn ngập không gian, tới cả phòng ngủ và kho chứa đồ.

Các thành viên gia đình đều là những người yêu thiên nhiên nên giải pháp thiết kế nhà kiểu "ốc đảo" là lựa chọn lý tưởng. Điều khá thú vị ở ngôi nhà này là những cây lớn đều hỗ trợ sự tồn tại của công trình. Họ đã mua cây Bao báp và cây chùm ngây từ châu Phi về trồng trong vườn nhà để tạo bóng mát, giúp thanh lọc không khí hiệu quả.

Kiến trúc sư sử dụng 3 tông màu chính cho ngôi nhà: trắng, xám và đen. Chúng được kết hợp theo cách để tạo ra một không gian sống không quá nhiều màu sắc. Sự kết hợp 3 màu sắc rất rõ ràng: Sàn nhà màu xám; các bức tường màu trắng; khung cửa, lan can, hàng rào màu đen.

Trong khi đó, màu gạch ở mặt tiền ngôi nhà là một điểm nhấn hút mắt, tạo sự khác biệt so với các công trình xung quanh. Mọi người vì thế cũng dễ dàng nhận biết ngôi nhà này ngay từ mặt tiền. Đọc bài về https://ello.co/nhaxinhpro/post/h6egndviddqkulxmj17e9q

Cây Bao báp lớn trồng trong vườn nhà.

Không gian phòng khách có thiết kế tối giản, sử dụng nội thất nhỏ gọn, kiểu dáng thanh thoát hiện đại. Tường kính trong suốt mang đến tầm nhìn thoáng đẹp.

Gian bếp ấm cúng, thoáng đãng và tràn ngập ánh sáng tự nhiên.

Sàn bê tông mài màu xám hài hòa với tường màu trắng và khung cửa, cửa màu đen giúp cân bằng bảng màu một cách tinh tế.

Kiến trúc sư tạo ra các khoảng trống thư giãn, vui chơi dành cho bố mẹ và con cái. Đây là lựa chọn "đắt giá" trong bối cảnh đại dịch Covid-19 đang hoành hành trên thế giới.

Công trình là sự hợp tác của 3 bên gồm kiến trúc sư, khách hàng và nhà thầu trong suốt quá trình thiết kế cho đến khi nó được xây dựng. Như đã đề cập ở trên, gia chủ là một nhà thiết kế đồ họa, người có kiến thức thiết kế cơ bản - rất hữu ích cho kiến trúc sư trong việc xử lý thiết kế nhà ở của khách hàng.

Nhà thầu thi công cũng được đào tạo bài bản về kiến trúc, xây dựng. Do đó, họ có thể hiểu được mong muốn của kiến trúc sư cũng như khách hàng một cách sâu sắc hơn. Theo đó, các kiến trúc sư không cần phải giám sát quá chặt chẽ quá trình thi công vì người thực thi có thể hiểu rõ các bản vẽ thiết kế và thực hiện chúng. Vậy nên, có thế nói rằng, ngôi nhà "ốc đảo" này là sự hợp tác ăn ý giữa "3 nhà thiết kế".

Không gian trong nhà - ngoài trời như hòa làm một, cảm giác gần gũi thiên nhiên.

Sắc xanh thiên nhiên từ cây lớn trồng ở vườn nhà, những chậu cảnh bố trí đều khắp các không gian tạo điểm nhấn màu sắc sinh động trên phông nền trung tính chủ đạo.

Tầng mái ngôi nhà dành cho cây xanh, kết nối gia đình.

Ban đầu, theo thiết kế, ngôi nhà gồm 2 tầng. Trong đó, tầng 1 dành cho các hoạt động sinh hoạt chung của gia đình, tầng 2 là các không gian riêng tư hơn cho các cá nhân. Tuy nhiên, khi đại dịch Covid-19 bùng nổ vào đầu năm 2020 - đòi hỏi rất nhiều hoạt động ở trong nhà, gia chủ mong muốn có thêm tầng trên cùng để thư giãn, làm vườn, hoạt động ngoài trời. Đáp ứng yêu cầu của khách hàng, kiến trúc sư thiết kế thêm một cầu thang mới để lên tầng 3 (tầng mái).

Tầng mái đã trở thành tầng 3 của ngôi nhà, nơi trồng cây xanh và có nhiều không gian cho hoạt động ngoài trời của các thành viên. Theo các kiến trúc sư, tầng 3 cung cấp nhận thức về sinh thái, về cuộc sống của con người không thể tách rời khỏi thiên nhiên và môi trường. Thực vật, cây cối và chúng ta luôn ở trong mối quan hệ cộng sinh, tương hỗ, cùng có lợi.

Chủ nhà sở hữu bộ sưu tập các loại cây mọng nước như xương rồng, sen đá trên tầng mái.

Khung cảnh ngôi nhà "ốc đảo" khi lên đèn.

Mặt bằng tầng 1

Mặt bằng tầng 2

Mặt bằng tầng mái

Phối cảnh ngôi nhà đón nhận ánh nắng mặt trời lúc 9 giờ sáng

Phối cảnh ngôi nhà vào 12 giờ trưa, khi mặt trời đứng bóng

Phối cảnh ngôi nhà vào 3 giờ chiều

Phối cảnh thông gió, đối lưu không khí cho ngôi nhà

Phối cảnh mặt tiền công trình

Phối cảnh mặt cắt ngôi nhà

Xem thêm bài về kiến trúc nhà xinh https://nhaxinhsaigon.com/

Theo thanhnienviet